
Volksschule Weissenbühl, Bern
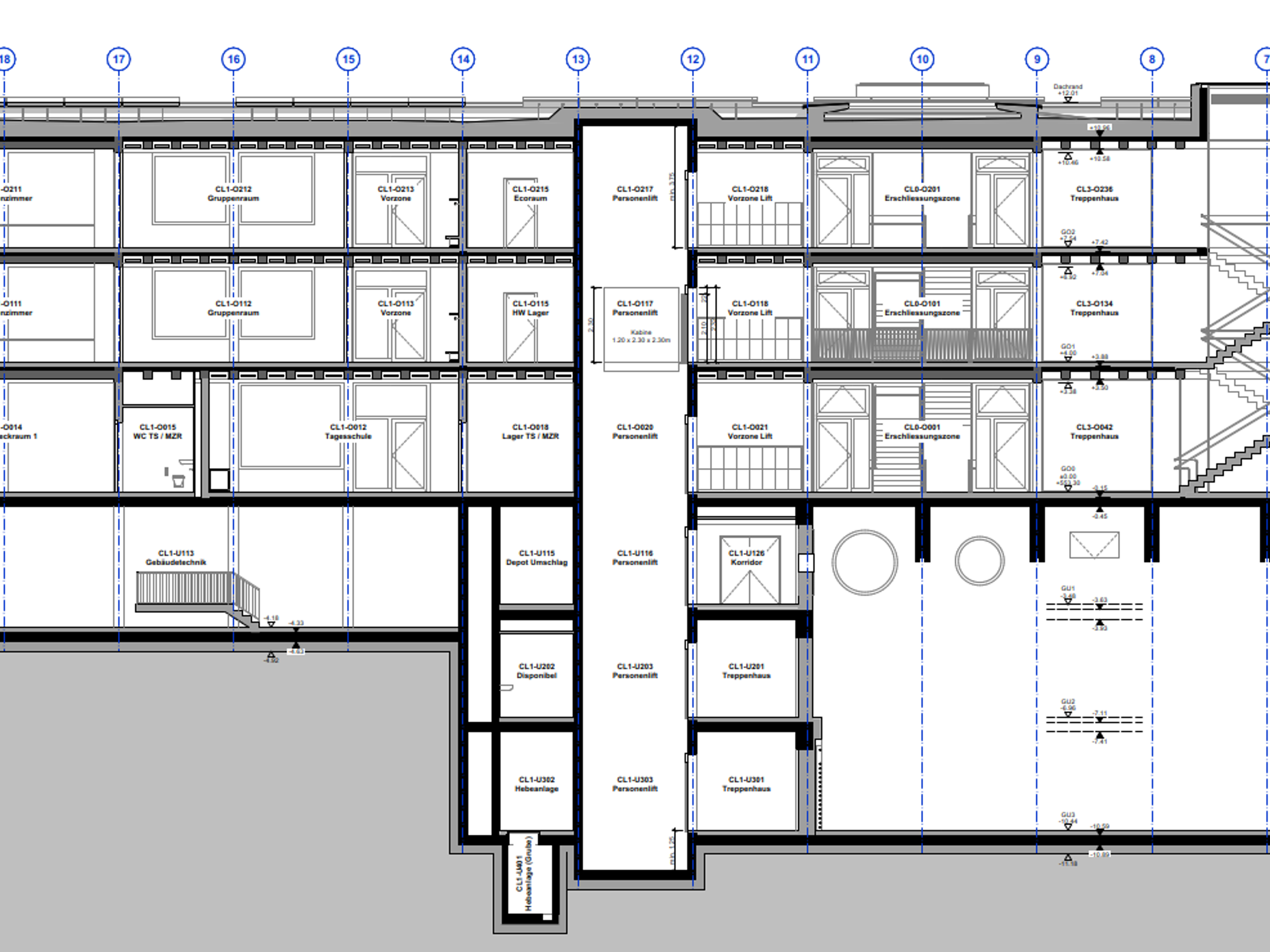
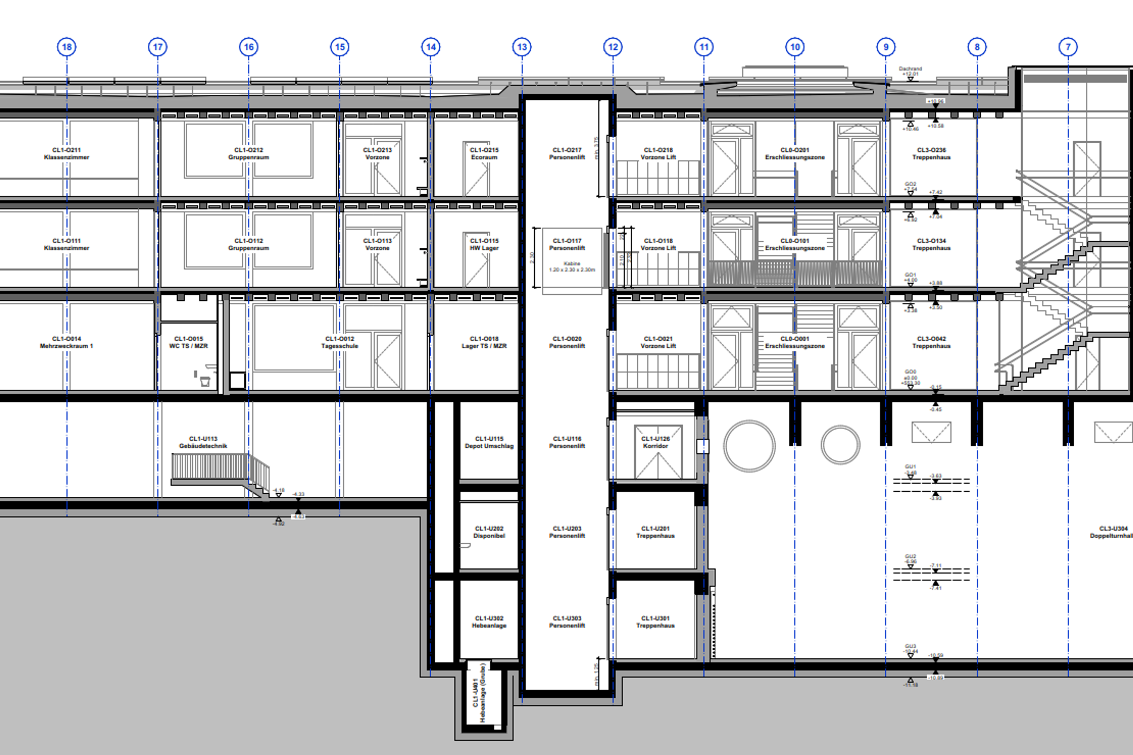
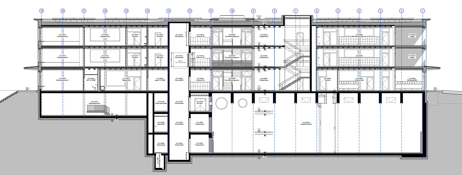
Die neue Volksschule Goumoëns liegt angrenzend an die Grünfläche «Gumere»-Matte im Stadtteil Mattenhof-Weissenbühl in Bern. Die Schule ist als Gebäude aus drei zusammenhängenden Körpern und einer zentralen Erschliessungszone konzipiert.
Der Neubau umfasst drei Geschosse, wobei die Möglichkeit einer späteren Aufstockung bereits in die Planung integriert wird. Zum Bahnhof und zur Stadt hin tritt aufgrund des Geländeverlaufs und der Anordnung der Doppelturnhalle im Untergeschoss die viergeschossige Fassade in den Dialog mit der städtischen Umgebung und ermöglicht direkten Tageslichtbezug in der Turnhalle.
Das Tragwerk des Schulgebäudes wird oberirdisch in Holzbauweise erstellt, während die Untergeschosse aus massivem Beton bestehen. Die klare Gebäudestruktur folgt dem Ziel nach einer möglichst einfachen, nachhaltigen, flexiblen und gleichzeitig wirtschaftlichen Bauweise.
Der Holzbau besteht aus einer Skelettstruktur mit Trägern und Stützen aus Brettschichtholz. Sämtliche Innenwände werden in nichttragender Leichtbauweise ausgebildet und ermöglichen eine maximale Nutzungsflexibilität. Die Geschossdecken aus Holz-Beton-Verbund kombinieren die Vorteile von beiden Baumaterialien, was für erhöhte Steifigkeit und besseres Schallschutz-, Schwingungs- und Brandschutzverhalten sorgt. Es handelt sich um Holzrippendecken in den Clustern und um Flachdecken in der mittleren Erschliessungszone.
Bei den Untergeschossen kommt Beton nur dort zum Einsatz, wo er eine klare statische Funktion hat, was sich durch eine Auflösung der UGs in Stützen und Unterzüge manifestiert. Voll ausbetoniert werden nur die Aussenwände und einzelne Wandscheiben für die horizontale Aussteifung des Gebäudes.Durch die Verlagerung der Turnhalle ins Untergeschoss unter einem der drei Gebäudeteile sind die über 28.5m spannenden Turnhallenträger und die 9m hohen Aussenwände hoch beansprucht.
Durch das geringe Eigengewicht der Holzkonstruktion kann die Aussteifung des Gebäudes über einzelne Betonscheiben in den Treppenhäusern und erfolgen. Aufgrund des guten Baugrundes wird das Gebäude flach fundiert.
Visualisierungen: © GWJ Architekten















